
一級建築士の家づくりについて紹介いたします。ガルバリウム鋼板と自然素材(漆喰、無垢床)の家。吹き抜け、リビング階段、天然芝や植栽のある暮らし。住まいの温熱環境計画や太陽光導入予定システムの内容から、消費電力や太陽光発電量を把握できる計算シート「住まいのエコチェック」のサービス提供をしています。

日射取得と日射遮蔽の検討は、断熱気密性能の検討と同じく快適な住まいづくりをする上で重要なポイントです。太陽光がどの時期にどのように入るのか想定することにより、日射を有効に活用できます。

窓は、日射の取り入れや開放感を出すことのほかに、風景を切り取る役割があります。立地条件から生かせるポイントを抽出し、計画に反映させることで、その立地でしかできない世界に一つの住宅を計画できます。

内装デザインは、多くても3色で統一することがコツです。大体の家では木が出てきますので、差し色は一色とし、他はモノトーンで揃えると、品のあるデザインとすることができます。




家づくりは、土地探しやHM・工務店探し、間取りの検討に断熱気密や換気システムの考え方、太陽光発電や蓄電池の導入、住宅設備の選定や素材選定等、様々な検討が必要な一方、世の中には様々な情報が溢れ、何から検討すればよいのか、また、何が正しいのか判断がつかない部分も多いかと思います。そこで、専門的見地と自邸を建築した施主としての経験の両面から、これから家づくりをされる皆様に対し、間取り相談から性能条件の検討、土地探しのポイントやHM、工務店探しに当たって注意すべき点、素材選定に関するご相談など、家づくりに当たって考えられるあらゆるお悩みに対し、ブログによる情報発信をしておりますので家づくりのご参考にしてください。
また、住まいの温熱環境計画や太陽光導入予定システムの内容から、消費電力や太陽光発電量を把握できる計算シート「住まいのエコチェック」のサービス提供をしていますので、是非皆様の家づくりにお役立てください。
家づくりの流れ

これから家づくりを計画される方向けに、お住まいの温熱環境計画や太陽光発電設備から、空調消費電力量や太陽光発電量…

入居してから2年半、やろうやろうと思ってもまだ良いかと思い続けた結果、LDKの無垢床が2箇所無垢床が剥がれたの…

ふとしたきっかけで金魚飼育を始めました。きっかけはオランダ(金魚の種類の名前です)を含む金魚すくいでとった金魚…

ついに我が家にも太陽光発電を導入しました(上の写真は導入時の様子)。県の事業で価格を抑えて導入できましたので、…

これから家づくりを計画される方向けに、お住まいの温熱環境計画や太陽光発電設備から、空調消費電力量や太陽光発電量…

今回は、乾燥方法によって、かかるトータルのコストを算出しつつ、それぞれのメリットデメリットをご紹介いたします。…

我が家では2階の個室以外は壁と天井に漆喰を使っています。使っていて感じる点や感じない点も含めてメリットデメリッ…

マイホームで憧れのシアタールーム、予算的に導入を断念する方もいるかもしれませんが、そんな方々に朗報です。 たっ…

マイホームの購入に当たっては、やるべき事が多岐にわたるため、何から始めて良いのか悩まれる方も多いと思います。こ…

収納を用途ごとにどのような奥行きが良いかまとめました。在庫収納系は内法寸法450はあった方が在庫がよく入ります…

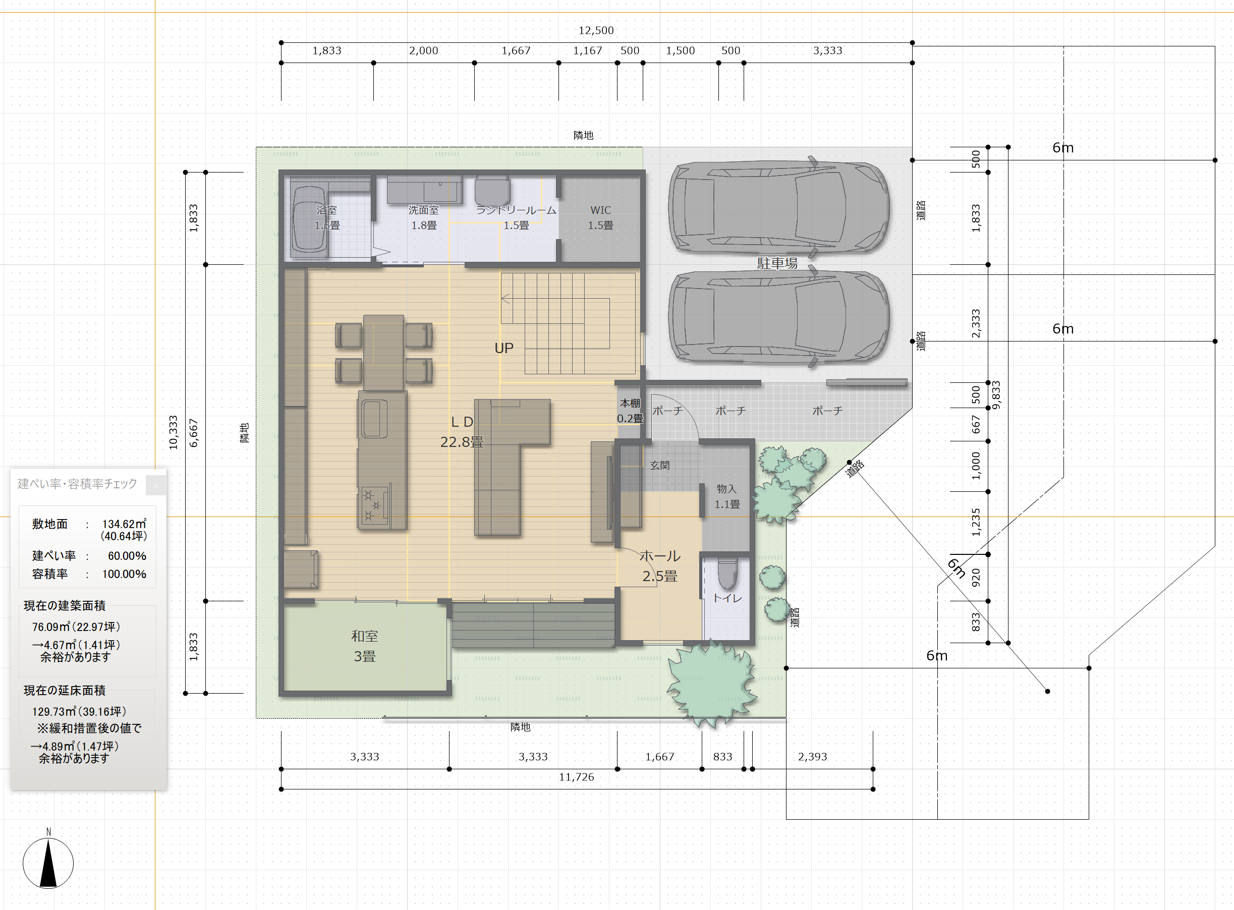
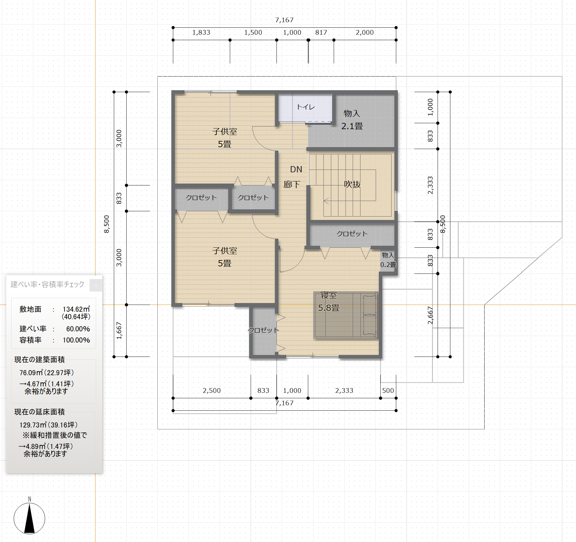
在来工法を想定して、尺グリッドで設計しました。 アプローチ、坪庭、ランドリースペース、書斎、割と贅沢なプランで…




これから家づくりを計画される方向けに、住まいの温熱環境計画から、空調消費電力や太陽光発電量を把握できる計算シート「住まいのエコチェック」を開発いたしました。
家づくりは、UA値やC値、日射遮蔽や外壁色の検討など、温熱環境の計画をするためにも相当勉強する必要がありますし、検討した内容がどのような効果があるのか、実際に住むまでわからない部分も多いかと思います。そこで、 「住まいのエコチェック」では、温熱環境の計画内容が消費電力や発電量に与える影響をあらかじめ計算できる仕組みをつくることで、皆様の家づくりの検討の一助となるように工夫しています。
私的利用は無償(私的利用以外は2025/3/31まで無償)として公開しておりますので、是非家づくりの参考にご活用ください。




工務店、HM探し中の皆様やまだプランニング初期段階の皆様向けに、間取りのプランニングサポートを行います。簡単な間取りチェックや修正提案のご提案から、概略プランのご提供など、様々なご要望にご対応いたします。間取りでお悩みの方は、お問い合わせでのご連絡や、XのDMにてご連絡ください。
※ご相談に当たっては、ご相談内容と現在の状況を簡単で結構ですので教えていただければと思います。

ほかの誰のものでもない、皆様だけの家づくりをサポートいたします。YOUTUBEでもささやかながら配信していますのでご覧ください。