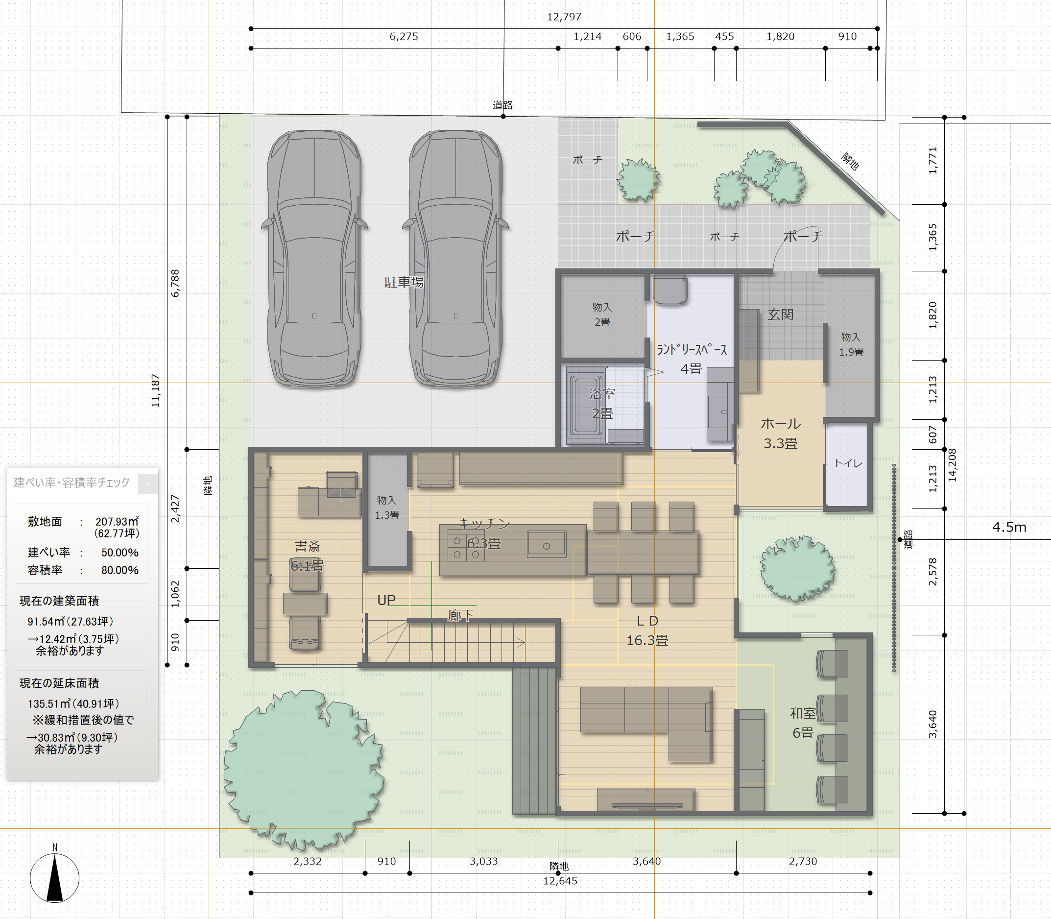
在来工法を想定して、尺グリッドで設計しました。
アプローチ、坪庭、ランドリースペース、書斎、割と贅沢なプランです。玄関入った時に坪庭が見えるように設計し、その坪庭は、LDKや和室からも見えるようにしています。
ランドリールームや書斎は、LDKから直接アクセスする計画とし、贅沢ながらも坪数を抑える工夫をしています。庭部分は囲い空間としてプライバシー性を持たせていて、書斎からも庭が見える計画としています。
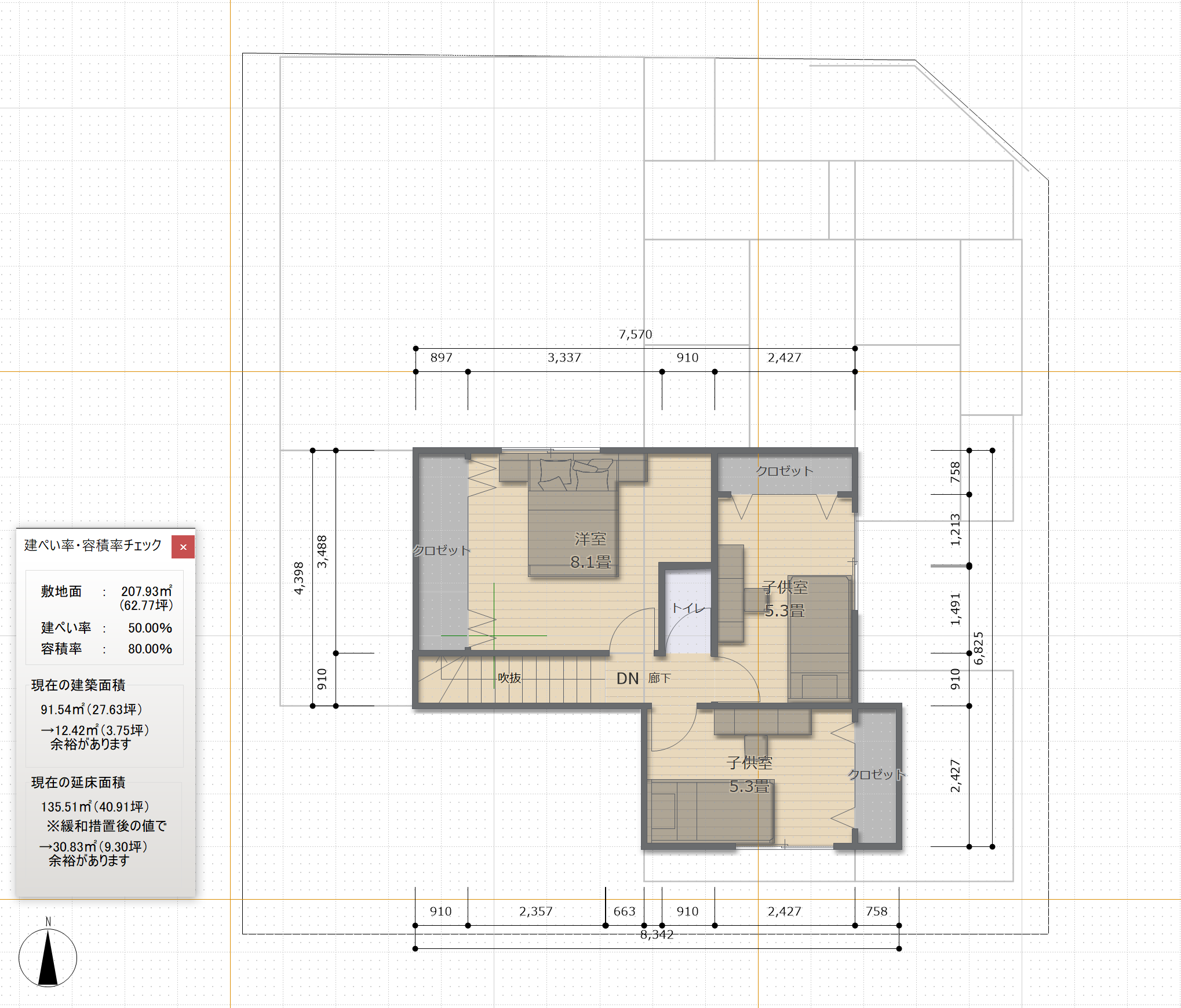
2階は廊下を少なくしつつ、外壁面を1階と揃え、耐震性にも配慮しつつ、使いやすくシンプルでありながら外観にも気を配ったプランニングとなっています。





