SE工法は、プランニングの自由度が高く、工務店でも大空間を設計することが可能であり、標準で耐震等級3なので、工務店で開放的な間取りを採用したい方にうってつけの工法です。参考までに、以下SE工法を想定して間取りの検討を行ったのでご紹介します。
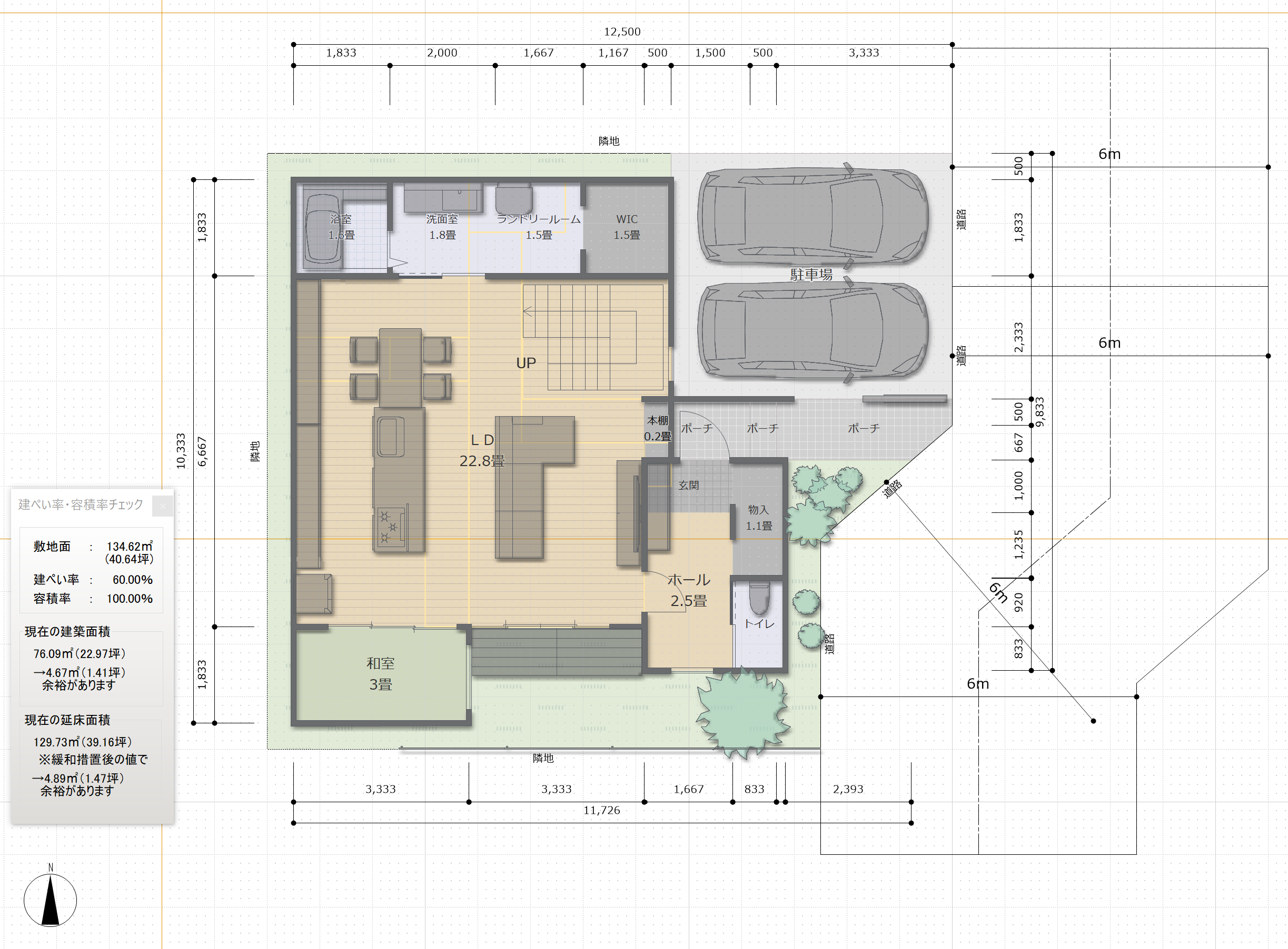
敷地面積134㎡、建蔽率や容積率は比較的制限の緩い地域を想定しての設計になります。



玄関入ってからの坪庭の確保、LDKの大空間の採用、洗面室やランドリールームの採用など、最近はやりのプランを詰め込みながらも、リビング階段を採用して坪数を削減し、総延べ床面積は130㎡と、比較的コンパクトに納めました(下の画像は2F部分)。このようにコンパクトな間取りでもSE工法の特徴を生かした大空間のLDKをプランニング可能なので、是非皆さん検討の一助としていただければと思います。



コメントを残す